Haus der Jugend

In der Johannesstraße im Zentrum von Sundern soll eine neue Jugendeinrichtung entstehen. Diese soll das “Gammon” in Sundern ersetzen. Die derzeitigen Angebote für junge Menschen in Sundern sollen erhalten und erweitert werden. 

Der Verein zur Förderung der Jugendhilfe in Sundern e.V. widmet sich in Kooperation mit der Stadt Sundern genau diesen Themen. 

Kinder, Jugendliche & Familien willkommen heißen

Gemeinschaft stärken - Raum für Austausch und Begegnung schaffen 

Bildung, Beratung und Beteiligung ermöglichen 

Sundern attraktiv für junge Menschen machen

Ansprechpersonen

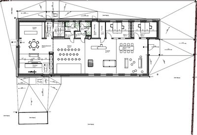
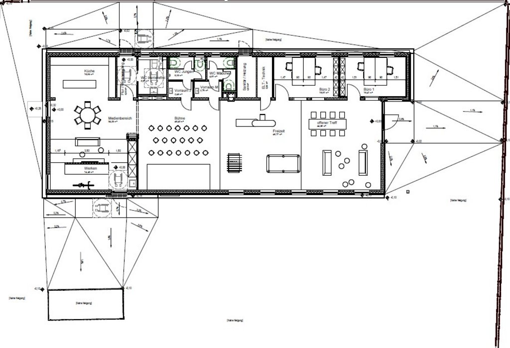
Das Gebäude soll über ca. 300 m² Nutzfläche verfügen und folgende Funktionen erfüllen: 

  •  Multifunktionsraum mit
    • Eingangsbereich
    • Freizeitbereich für Spielgeräte wie z.B. Airhockey-Tisch, Kicker, Billardtisch und Dartscheibe
    • Eventbereich
  • Küche
  • Ruhe-/ Kreativ- und Medienraum
  • Sanitärtanlagen
  • zwei Büros für Mitarbeitende 

 

Sie möchten das Projekt unterstützen? 

Dann werden Sie Teil davon. 

Die Initiative einsU hat beispielsweise eine großzügige Spende zugesagt und wird den “Grundstein” legen, indem sie die Bodenplatte finanziert. 

Auch Sie können im wahrsten Sinne der Grund für ein attraktives Angebot für junge Menschen in Sundern sein und durch Ihre Spende an der weiteren Ausgestaltung des Hauses mitwirken. Jede Unterstützung zählt! Mit einer Spende ab 3.000 Euro können Sie sich einen Platz in der Spendengalerie sichern.  

Auf dem eigens für das Projekt angelegten Spendenkonto des Vereins zur Förderung der Jugendhilfe in Sundern e.V. ist Ihre Spende sicher und zweckbestimmt aufgehoben.

Spendenkonto: Sparkasse Mitten im Sauerland / DE33 4665 0005 0160 0019 96

Zur offiziellen Internetseite des Vereins: https://jugendhilfeverein-sundern.jimdosite.com/ 

Newsletter-Anmeldung 

Menü